Home
Projects
Interior Design
UX Design
About
Contact
Home
Projects
Interior Design
UX Design
About
Contact
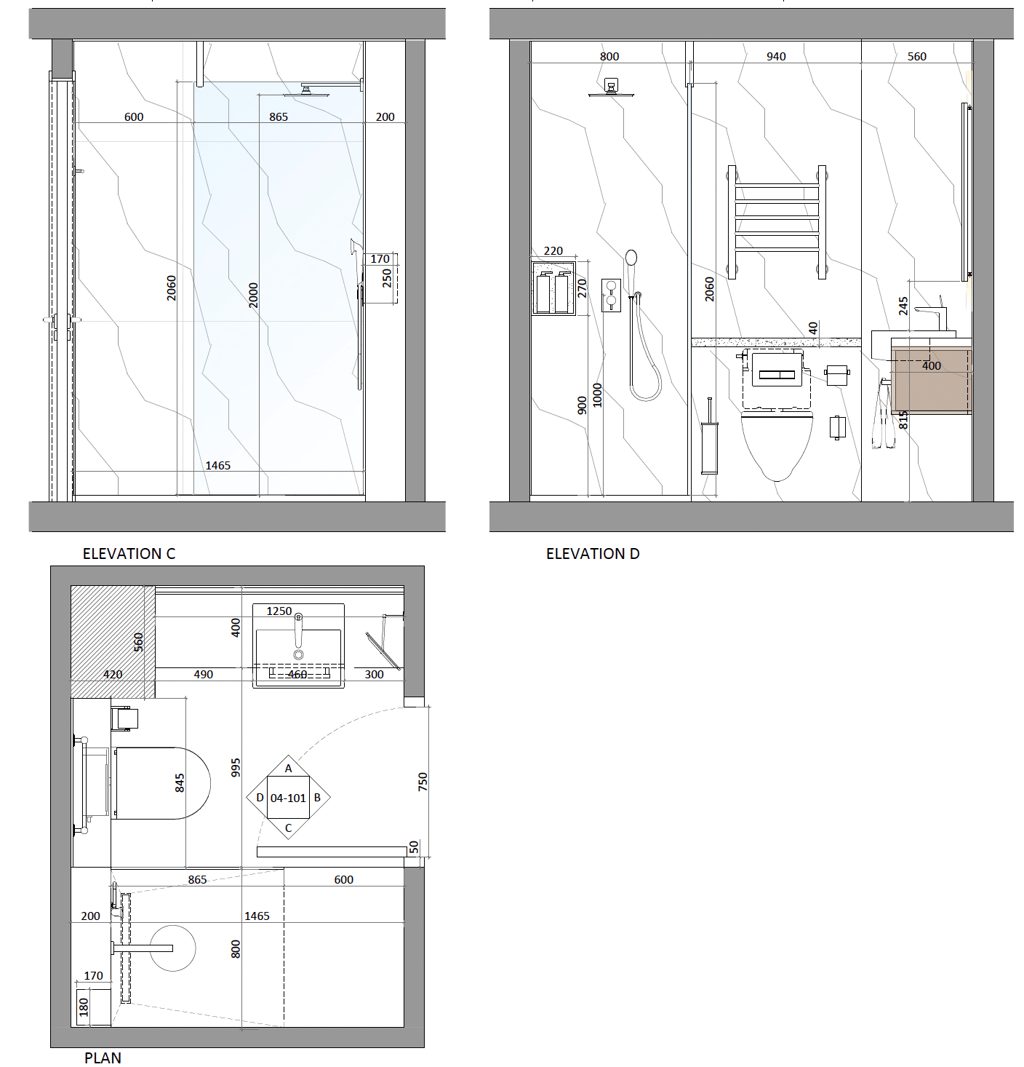
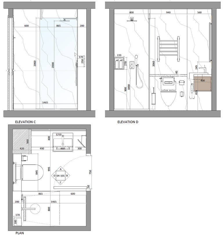
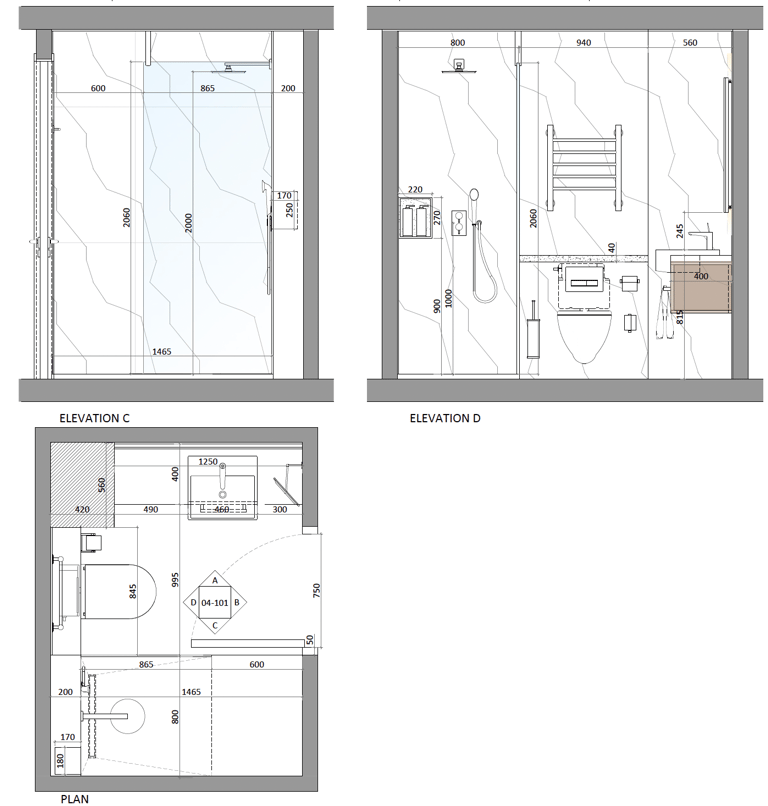
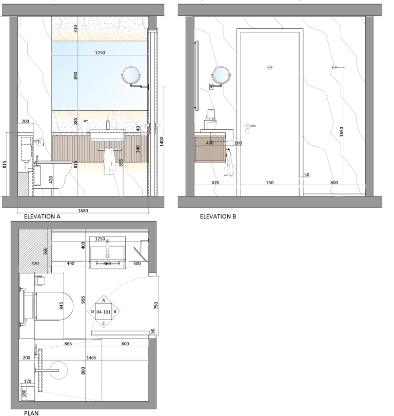
3-Star Hotel in Galway, Ireland
Work in progress 3-Star Hotel project in Country Galway, Ireland. Developing 3 different budget-friendly schemes and detailed technical drawings for bedrooms and en-suites.
Location
Dublin, Ireland
Contacts
+353 (89) 423 4670
gabi.baltr@gmail.com
ALL RIGHTS RESERVED © 2026