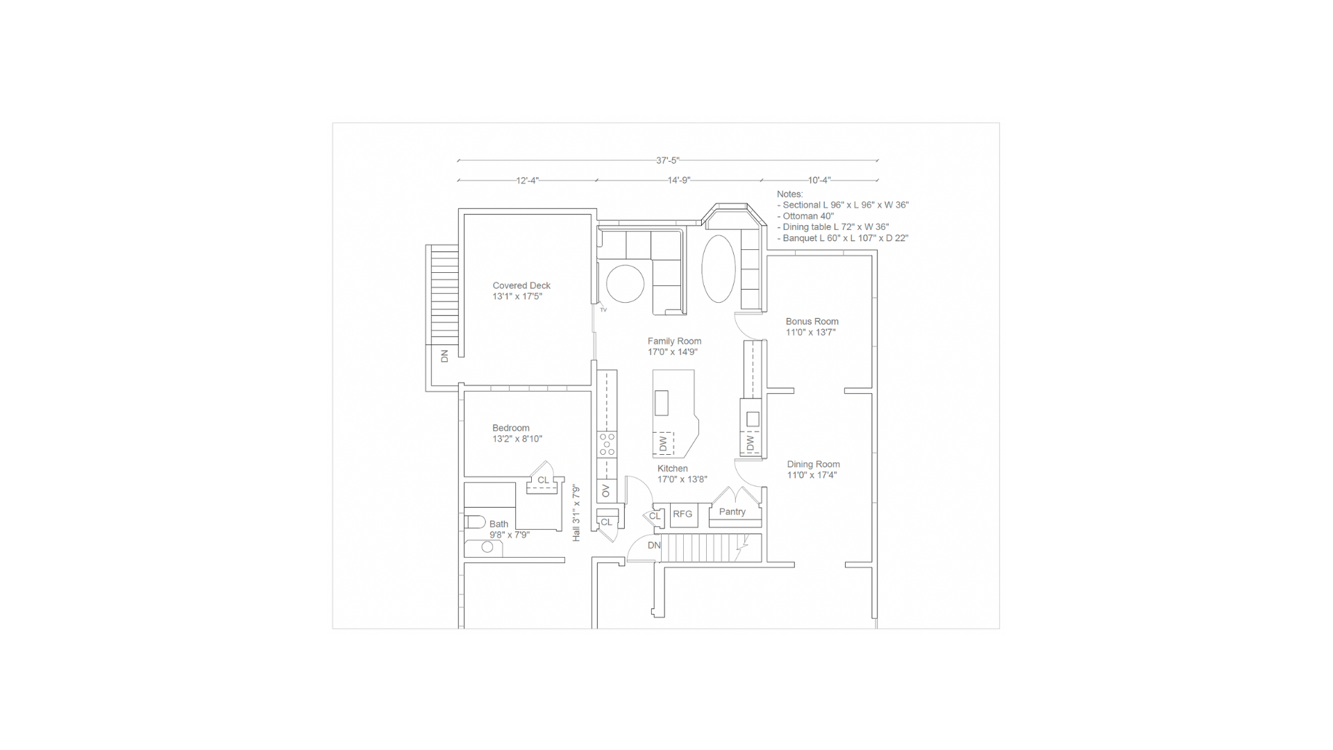
San Francisco Designs
Work from internship at an interior design company located in San Francisco, California. I worked along several high-end residential projects around California. Went on site visits, made material boards, furniture shopped, worked on budget, status trackers and spec sheets on excel, did technical drawings for a variety of projects and other duties as an interior design intern!
















